Sở hữu những vịt cỏ đắc địa , thiết kế với tươm tất các tiện nghi , đây là hai Dấu hiệu để ghi nhận dễ thấy ở những chung cư cộp mác cao cấp tại Hà Nội.
Và dĩ nhiên chung cư cao cấp cũng đồng nghĩa với mức giá cấp cao.Tuy chất đốt hai Dấu hiệu để ghi nhận trên đã đủ để mang lại một cuộc sống tiện nghi xứng đáng với số tiền mà người mua nhà phải bỏ ra?
Hãy cùng nhìn lại những Dấu hiệu để ghi nhận của chung cư cao cấp do Bộ Xây Dựng ban hành trong Thông tư 14/2008/TT-BXD. Bên cạnh những Dấu hiệu để ghi nhận chung về phong cảnh , hạ tầng từng lớp , hạ tầng kỹ thuật , khi nhắc đến chung cư cao cấp thì người mua nhà không thể bỏ qua hai Dấu hiệu để ghi nhận mật độ căn hộ/tầng và tỷ lệ căn hộ/thang máy. Hai Dấu hiệu để ghi nhận này sẽ ảnh hưởng tới cuộc sống của cư dân như sau:
Thứ nhất Dấu hiệu để ghi nhận mật độ căn hộ/ tầng chi phối trực tiếp đến không gian bố trí căn hộ. Mật độ càng thấp thì các căn hộ càng có nhiều không gian để thiết kế và bố trí , nhờ vậy mỗi căn sẽ có nhiều mặt thoáng hơn , các phòng được bố trí hợp lý , mang lại một nền móng tốt để có cuộc sống tiện nghi , thoải mái.
Mật độ căn hộ thấp cũng giúp hiên , thang thoát hiểm được bố trí rộng rãi , tăng khả năng lưu thông khi có những sự cố xảy ra , từ đó đảm bảo an toàn cho cư dân sinh sống.
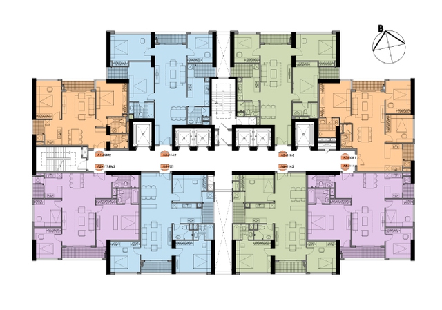
Nhờ mật độ lý tưởng nên các căn hộ của đề án Sun Square đều có 2 mặt thoáng
Thứ hai , mật độ trên căn hộ cũng chi phối lượng thang máy của tòa nhà. Với chung cư thì việc di chuyển bằng thang máy ảnh hưởng dồi dào đến cuộc sống của người dân. Chính bởi vậy , chung cư cao cấp phải có tỷ lệ 40 căn/thang máy hoặc nhỏ hơn.
Thứ ba , mật độ căn hộ trên tầng ảnh hưởng đến quy mô dân số của mỗi đề án. Mật độ căn hộ quá cao thì lượng căn hộ càng nhiều , dẫn đến dân cư tập kết đông , khiến cuộc sống thêm sô bồ và khó đảm bảo sự thư thái.
Từ 2 Dấu hiệu để ghi nhận quan trọng trong thông tư 14 có khả năng thấy rằng , để mua được căn hộ cao cấp xứng đáng với số tiền bỏ ra , bên cạnh các Dấu hiệu để ghi nhận dễ thấy như vịt cỏ , tiện ích , khách mua nhà cũng cần đặc biệt chú tý tới mật độ căn hộ và tỷ lệ thang máy. Trong các đề án BĐS đang mở bán hiện tại thì Sun Square là một trong những đề án đảm bảo rất tốt tất thảy các Dấu hiệu để ghi nhận ở trên.
Nằm ngay ngã tư Lê Đức Thọ Hàm Nghi , Sun Square có vịt cỏ lý tưởng
đề án Sun Square chỉ có hơn 400 căn với mật độ sinh sống vô cùng lý tưởng , 6 căn/tầng tòa B và 8 căn/ tầng tòa A , tỷ lệ thang máy cũng hoàn toàn đạt chuẩn với 36 căn/thang. Cũng nhờ mật độ lý tưởng mà mỗi căn hộ của đề án đều có 2 lô gia , 2 mặt thoáng.
Tọa lạc ngay ngã tư Lê Đức Thọ , Nguyễn Hoàng , Sun Square có vịt cỏ đắc địa tiện ích đồng bộ với: 3 tầng hầm để xe , 2 tầng thương mại , khu tiện ích cao cấp với bể bơi , phòng tập Gym , Yoga&Fitness…
mặc dầu Đa chủng hóa diện tích , tăng mật độ số căn để tối đa hóa lợi nhuận đang là khuynh hướng phổ quát của các đề án hiện này thì Sun Square của chủ đầu tư Thang Long UDIC vẫn luôn bền chí theo đuổi mục tiêu mang lại một đề án phục vụ tốt nhất cho cư dân , góp phần vun đắp những giá trị cuộc sống. Dễ thường nhờ vậy mà Sun Square luôn là tuyển trạch của những khách mua nhà uyên bác đi lùng những giá trị thực.
A.D
Theo Trí thức trẻ
Và dĩ nhiên chung cư cao cấp cũng đồng nghĩa với mức giá cấp cao.Tuy chất đốt hai Dấu hiệu để ghi nhận trên đã đủ để mang lại một cuộc sống tiện nghi xứng đáng với số tiền mà người mua nhà phải bỏ ra?
Hãy cùng nhìn lại những Dấu hiệu để ghi nhận của chung cư cao cấp do Bộ Xây Dựng ban hành trong Thông tư 14/2008/TT-BXD. Bên cạnh những Dấu hiệu để ghi nhận chung về phong cảnh , hạ tầng từng lớp , hạ tầng kỹ thuật , khi nhắc đến chung cư cao cấp thì người mua nhà không thể bỏ qua hai Dấu hiệu để ghi nhận mật độ căn hộ/tầng và tỷ lệ căn hộ/thang máy. Hai Dấu hiệu để ghi nhận này sẽ ảnh hưởng tới cuộc sống của cư dân như sau:
Thứ nhất Dấu hiệu để ghi nhận mật độ căn hộ/ tầng chi phối trực tiếp đến không gian bố trí căn hộ. Mật độ càng thấp thì các căn hộ càng có nhiều không gian để thiết kế và bố trí , nhờ vậy mỗi căn sẽ có nhiều mặt thoáng hơn , các phòng được bố trí hợp lý , mang lại một nền móng tốt để có cuộc sống tiện nghi , thoải mái.
Mật độ căn hộ thấp cũng giúp hiên , thang thoát hiểm được bố trí rộng rãi , tăng khả năng lưu thông khi có những sự cố xảy ra , từ đó đảm bảo an toàn cho cư dân sinh sống.
Thứ hai , mật độ trên căn hộ cũng chi phối lượng thang máy của tòa nhà. Với chung cư thì việc di chuyển bằng thang máy ảnh hưởng dồi dào đến cuộc sống của người dân. Chính bởi vậy , chung cư cao cấp phải có tỷ lệ 40 căn/thang máy hoặc nhỏ hơn.
Thứ ba , mật độ căn hộ trên tầng ảnh hưởng đến quy mô dân số của mỗi đề án. Mật độ căn hộ quá cao thì lượng căn hộ càng nhiều , dẫn đến dân cư tập kết đông , khiến cuộc sống thêm sô bồ và khó đảm bảo sự thư thái.
Từ 2 Dấu hiệu để ghi nhận quan trọng trong thông tư 14 có khả năng thấy rằng , để mua được căn hộ cao cấp xứng đáng với số tiền bỏ ra , bên cạnh các Dấu hiệu để ghi nhận dễ thấy như vịt cỏ , tiện ích , khách mua nhà cũng cần đặc biệt chú tý tới mật độ căn hộ và tỷ lệ thang máy. Trong các đề án BĐS đang mở bán hiện tại thì Sun Square là một trong những đề án đảm bảo rất tốt tất thảy các Dấu hiệu để ghi nhận ở trên.
đề án Sun Square chỉ có hơn 400 căn với mật độ sinh sống vô cùng lý tưởng , 6 căn/tầng tòa B và 8 căn/ tầng tòa A , tỷ lệ thang máy cũng hoàn toàn đạt chuẩn với 36 căn/thang. Cũng nhờ mật độ lý tưởng mà mỗi căn hộ của đề án đều có 2 lô gia , 2 mặt thoáng.
Tọa lạc ngay ngã tư Lê Đức Thọ , Nguyễn Hoàng , Sun Square có vịt cỏ đắc địa tiện ích đồng bộ với: 3 tầng hầm để xe , 2 tầng thương mại , khu tiện ích cao cấp với bể bơi , phòng tập Gym , Yoga&Fitness…
mặc dầu Đa chủng hóa diện tích , tăng mật độ số căn để tối đa hóa lợi nhuận đang là khuynh hướng phổ quát của các đề án hiện này thì Sun Square của chủ đầu tư Thang Long UDIC vẫn luôn bền chí theo đuổi mục tiêu mang lại một đề án phục vụ tốt nhất cho cư dân , góp phần vun đắp những giá trị cuộc sống. Dễ thường nhờ vậy mà Sun Square luôn là tuyển trạch của những khách mua nhà uyên bác đi lùng những giá trị thực.
A.D
Theo Trí thức trẻ
0 comments:
Post a Comment